Cantina Valetti
Bardolino Verona, Italia
committente:
Az. Vinicola Valetti Luigi
anno:
2016
superficie:
1100 mq
foto:
Alessandra Chemollo


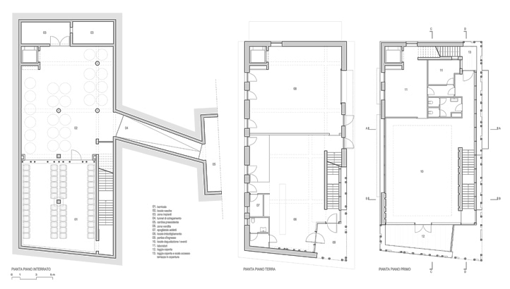
Azienda a conduzione familiare situata nel cuore della Zona Classica di produzione del Bardolino, in un territorio a forte vocazione turistica nella sponda sud del Lago di Garda, la Cantina Valetti da tre generazioni cerca il meglio dalle uve coniugando tradizione e tecnologia. La nuova cantina si compone di due livelli fuori terra per zone di vendita, degustazione ed imbottigliamento e un livello interrato per aree produttive; staccandosi dall’edificio esistente forma una corte chiarendo il rapporto di forza tra vecchio e nuovo. Il volume non cerca la mitigazione ma impone la sua presenza mettendo assieme diverse idee del costruire: il paradigma massivo della pietra e l’assemblaggio tettonico della struttura in acciaio, in una allusione formale e cromatica ad elementi tipici del paesaggio circostante, le marogne dei terrazzamenti e i pali di sostegno delle viti. La struttura in acciaio viene alleggerita grazie alla piega data ai sostegni esterni che seguono una logica “organica”; il muro in pietra si inclina verso lo spazio a doppia altezza dell’ingresso e accompagna il visitatore ai piani superiori dove si spalanca una splendida vista lago. L’edificio di notte diventa iconico; le linee luminose, come segni grafici, rivelano prospettive, scorci e volumi.